Start
News
Institut
Team
Institut
Lehre
Chronologisch
Typologisch
Diplom
Chronologisch
Typologisch
Publikationen
Forschung
Suche
Matthias Tammerle • Tobias Ewerz
Sommersemester 2025
Matthias Tammerle • Tobias Ewerz
Entwerfen - Master
Gangoly / Hohenwarter · Gruber / Koller
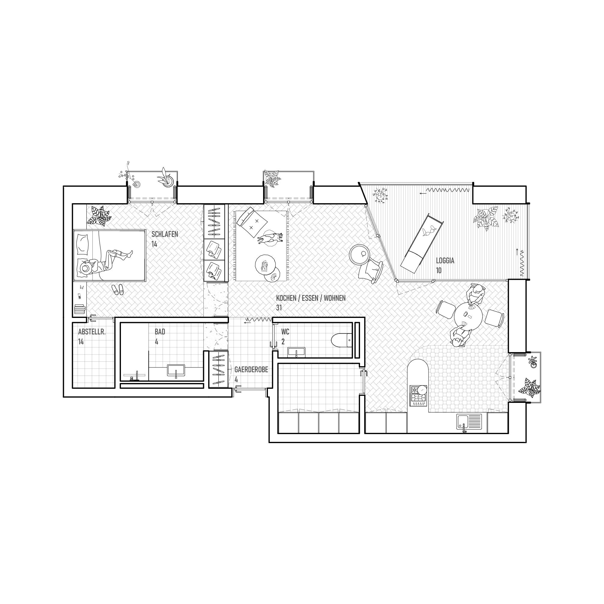
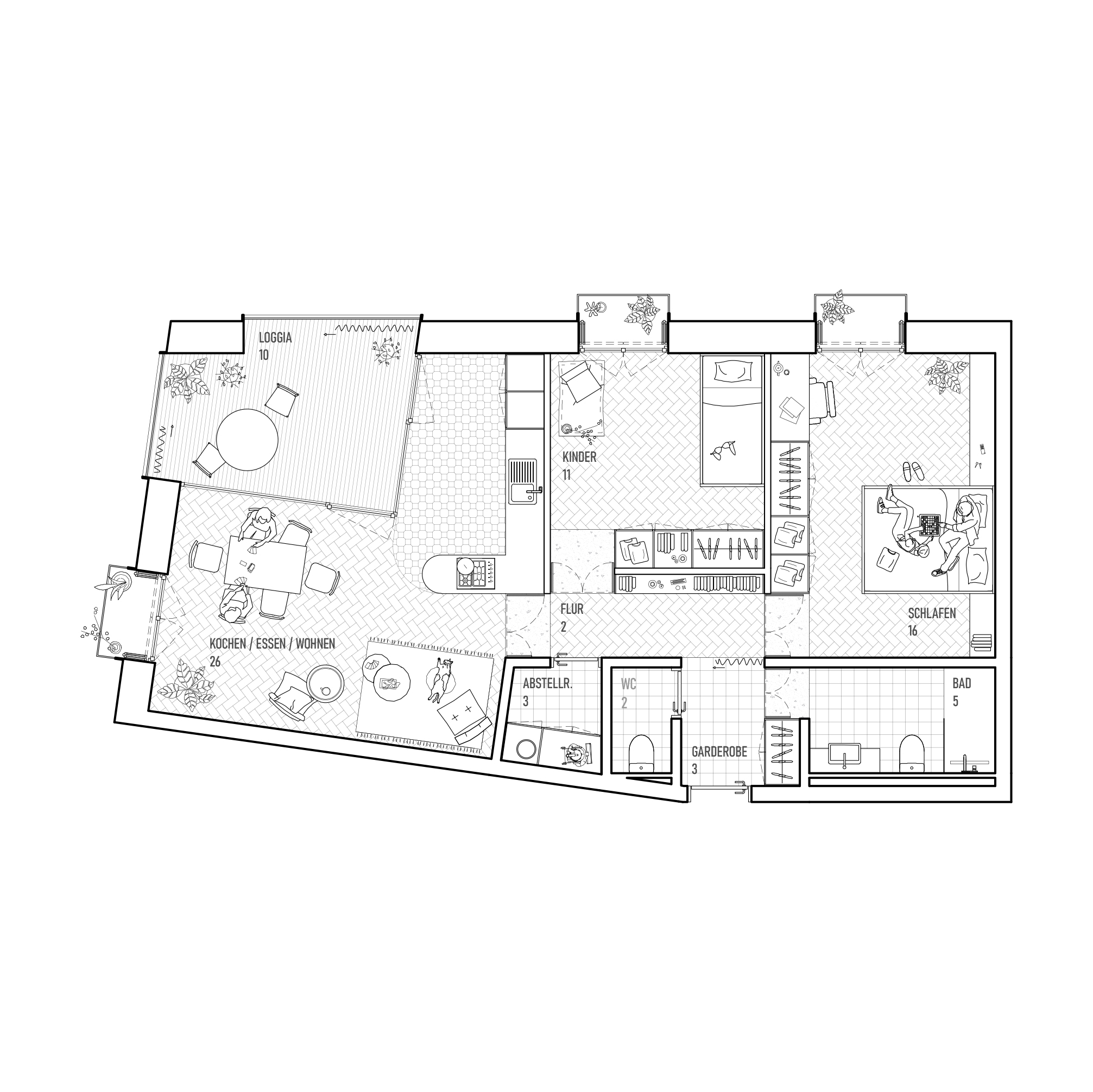
Typology:
Housing