Start
News
Institut
Team
Institut
Lehre
Chronologisch
Typologisch
Diplom
Chronologisch
Typologisch
Publikationen
Forschung
Suche
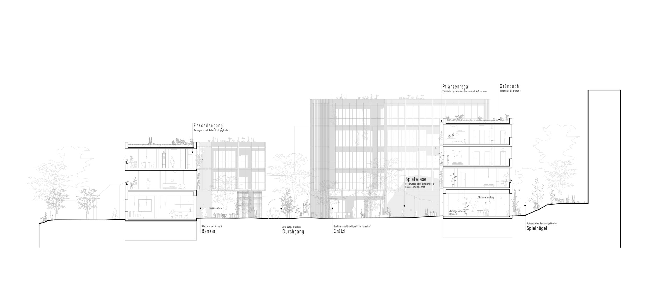
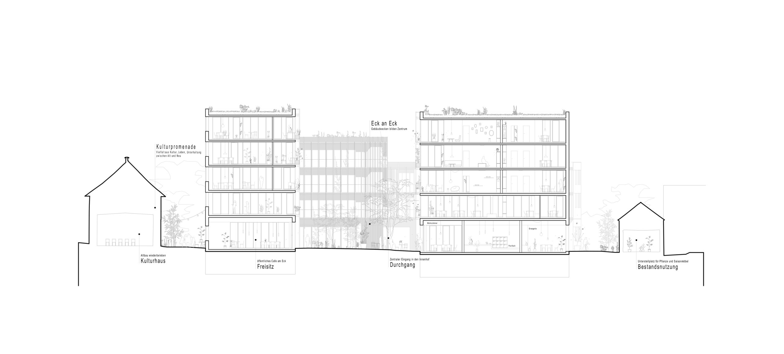
Laura Juch • Lisa-Marie Sohneg
Sommersemester 2025
Laura Juch • Lisa-Marie Sohneg
Entwerfen - Master
Gangoly / Hohenwarter · Gruber / Koller
Typology:
Housing