Start
News
Institut
Team
Institut
Lehre
Chronologisch
Typologisch
Diplom
Chronologisch
Typologisch
Publikationen
Forschung
Suche
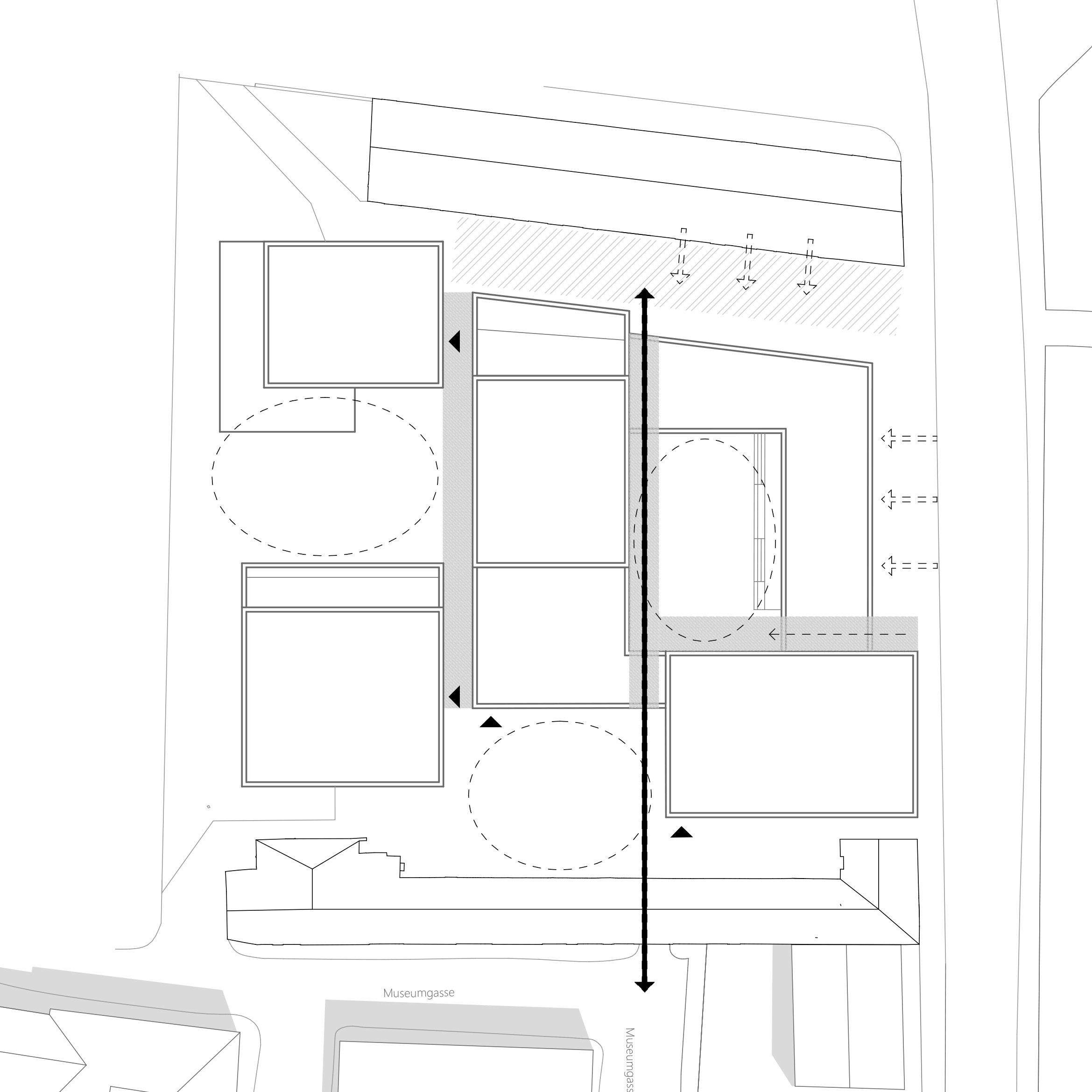
Clara Chvátalová • Shqipërie Thaçi
Sommersemester 2025
Clara Chvátalová • Shqipërie Thaçi
Entwerfen - Master
Gangoly / Hohenwarter · Gruber / Koller
Typology:
Housing