Start
News
Institut
Team
Institut
Lehre
Chronologisch
Typologisch
Diplom
Chronologisch
Typologisch
Publikationen
Forschung
Suche
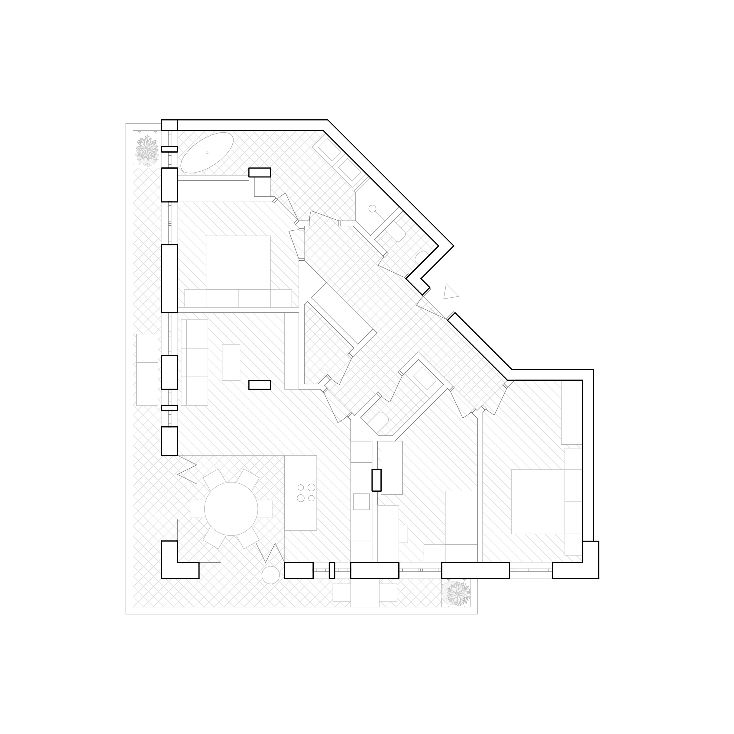
Christina Bachinger • Florian Winkler
Sommersemester 2025
Christina Bachinger • Florian Winkler
Entwerfen - Master
Gangoly / Hohenwarter · Gruber / Koller
Typology:
Housing