Kongresszentrum Bad Gastein • Das Gebäude als offener Prozess







Studienjahr 2024/25
Hermann Hofer • Lukas Meikl
Masterarbeit
Eva Sollgruber
Typology: Culture

Bad Gastein war zur Kaiserzeit ein belebter und prosperierender Ort. Bekannt durch seine Thermalquellen und die besondere hochalpine Lage, war Bad Gastein ein vielbesuchter und mondäner Kur- und Erholungsort für internationale Berühmtheiten, Adelige und unzählige Tourist:innen. Doch aufgrund der mit Ende des 20. Jahrhunderts wachsenden finanziellen Probleme verkaufte die Gemeinde viele Objekte im Ortskern an private Investor:innen. Dadurch stieg bis zum heutigen Zeitpunkt der innerörtliche Leerstand und Verfall. Lediglich die imposant am Hang thronenden, größtenteils leerstehenden, Bauten erinnern an die touristische Hochburg des frühen 20. Jahrhunderts.
Um dieser Entwicklung des Ortes entgegenzuwirken, müssen die Leerstände reaktiviert, umgenutzt und vor allem wiederbelebt werden. Als Beispiel für eine mögliche Reaktivierung einer Bausubstanz dient in dieser Arbeit das ehemalige Kongresszentrum Bad Gastein: ein in den 70er Jahren von Gerhard Garstenauer geplanter und ausgeführter Stahlbetonfertigteilbau. Das Gebäude bildet durch seine Bebauung einen innerörtlichen Hauptplatz direkt am Wasserfall und steht seit der Jahrtausendwende leer. Seitdem nimmt die Frequenz an diesem Ort ständig ab, und das Gebäude verfällt gemeinsam mit seinem Erinnerungswert.
Die Grundlagenarbeit für dieses Projekt besteht aus drei Teilbereichen: erstens, einer historischen Analyse des Ortes mit seiner baulichen Entwicklung über die letzten Jahrhunderte und seiner Vergangenheit als Tourismus-, Kur- und Erholungsort. Der zweite Teil beschäftigt sich mit der städtebaulichen Analyse des innerörtlichen Kontexts. Es werden hierbei Bebauungen, Verkehrswege, Nutzungen und weitere Aspekte in verschiedenen Maßstäben betrachtet, um eine fundierte städtebauliche Analyse zu erarbeiten. Im dritten Teil wird das Gebäude in seine einzelnen Bauteile zerlegt. Diese Elemente werden für eine Massenermittlung und eine daraus folgende Berechnung der CO2- Äquivalenz des Bestandsgebäudes verwendet, um die ökologische Wichtigkeit der Erhaltung einer solchen Bausubstanz zu unterstreichen.
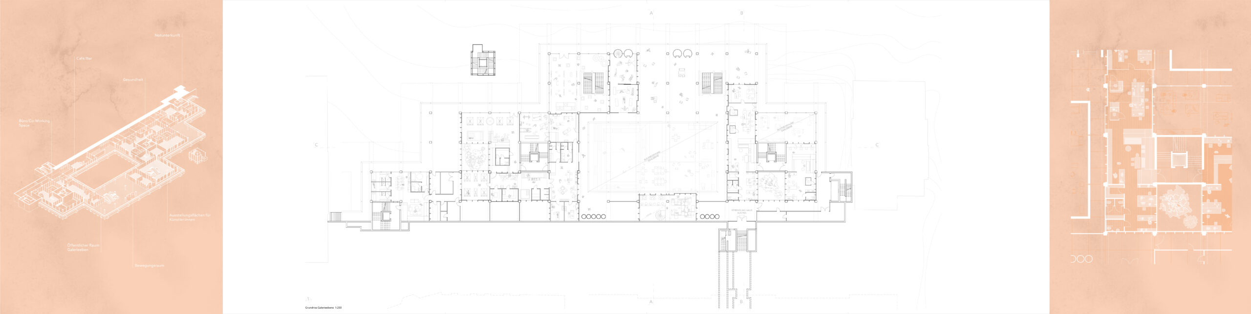
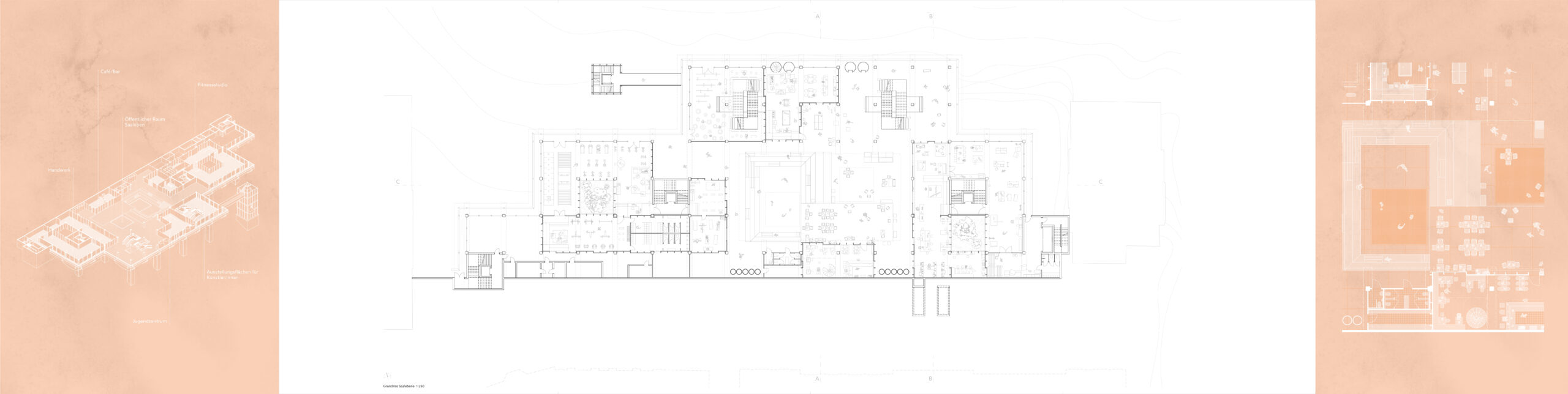
Die Bestandsanalysen dienen der Entwicklung eines Entwurfs für eine neue Platzgestaltung und ein neues Verkehrskonzept rund um das Kongresszentrum. Diese Eingriffe sollen die Aufenthaltsqualität für Passant:innen und Besucher:innen steigern und künftig die Frequenz am Platz erhöhen. Weiters resultieren aus den vorangegangenen Analysen die Entwicklung eines neuen Nutzungs- und Raumkonzepts für das Gebäude. Die bestehende, rohe Bausubstanz aus Beton wird hierbei als architektonische Ruine betrachtet. Auf, unter und in dieser Ruine werden Bereiche, Durchwegungen und Räume für neue Funktionen definiert und entworfen.

Die oberste Priorität aller planerischen Eingriffe in der Arbeit ist dieser Revitalisierung des alten Kongresszentrums und die Wiederbelebung des leeren Platzes davor. Mit der Erarbeitung von Strategien für die Weiterentwicklung der bestehenden Struktur und das Sichtbarmachen des Potentials der prominenten Lage des Gebäudes innerhalb des Ortes durch einen Entwurf, trägt das Projekt zu einer erforderlichen und schrittweisen Erneuerung von Bad Gastein bei.