Intervening at the Small Scale • The Preservation and Transformation of a Former Rectory







Studienjahr 2024/25
Hanna Maria Gletthofer
Masterarbeit
Eva Sollgruber
Typology: CultureReligion

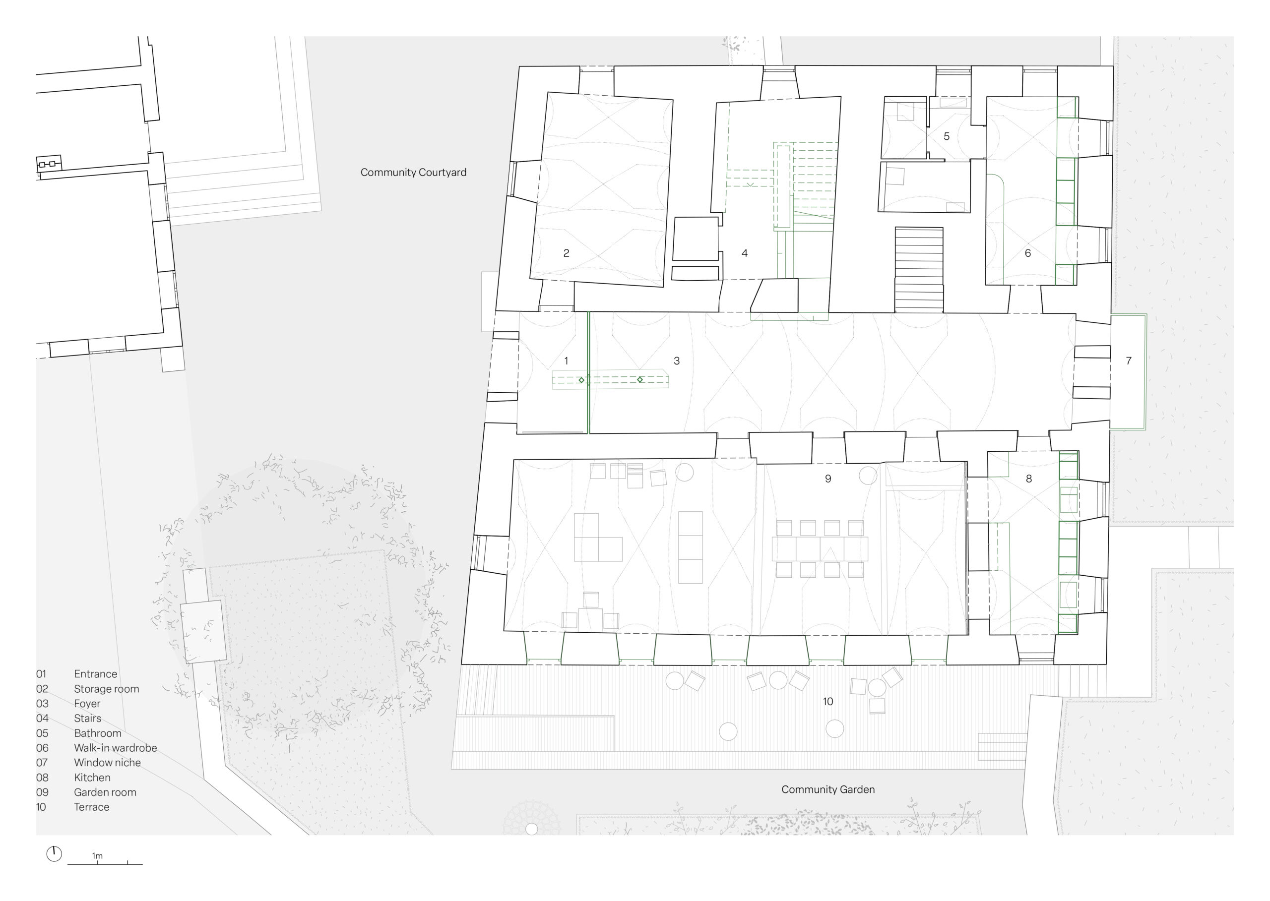
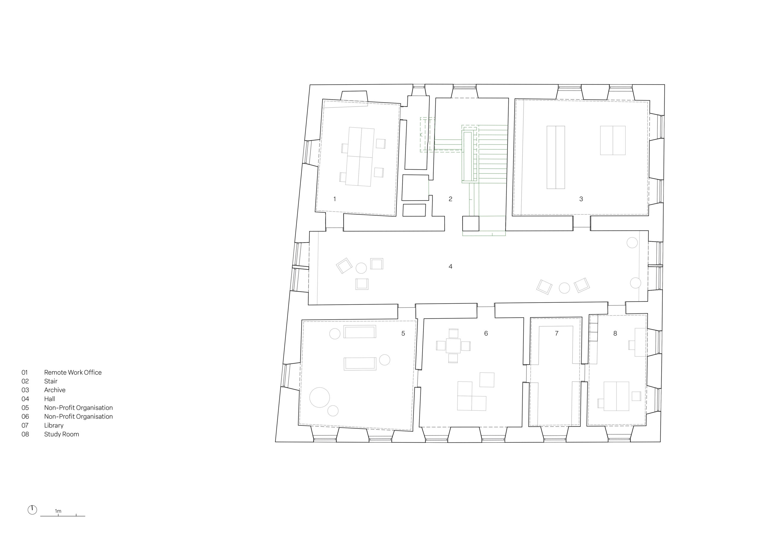
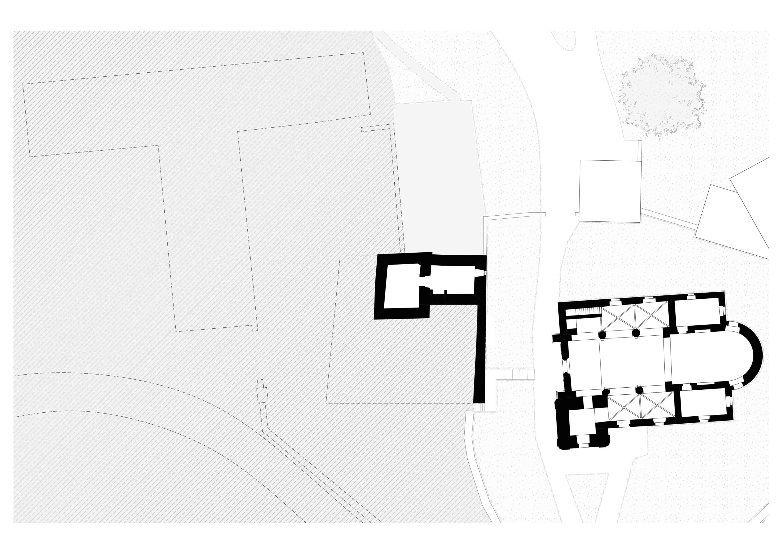
The conversion, adaptation, and preservation of buildings—working with existing structures—is increasingly becoming the focus of architectural practice. In addition to cultural and socio-economic aspects, the sustainable use of existing buildings is a way to reduce the construction industry‘s contribution to climate change. This thesis deals with the concept of permanence and interprets it architecturally using an existing building structure in St. Jakob im Walde. The vacant building, formerly used as a rectory, is located on the eastern edge of the Austrian Alps and part of the region of Joglland. This work aims to give the existing rectory in St. Jakob im Walde a new expression to contribute to the development of the rural area using small interventions. ‘Can rethinking a fragment have a broader impact on the object and its context?’ forms the central question of the work and the basis for the design approach. Gentle interventions critically question the existing structure and rethink spatial relationships within the object. The individual interventions – the fragments- form a family of objects. With the overriding aim of permanence, an attempt is made to approach the theme of transformation. A methodical examination of drawings and models contributes to analysing the region and the context. The graphic elaboration is supported by literature on vernacular
architecture, regional planning and the approach to building in existing structures. Aldo Rossi‘s urban theory of primary elements is rethought and applied to the rural space. The monument‘s significance is attributed to the existing building typology of the rectories, and their role in strengthening the town centres is discussed. The relations between regional planning and the fabric of our globalised world, the relation of the rectory in St. Jakob im Walde and the social fabric of the region, as well as the relation of the six designed fragments to the fabric of the building structure, are discussed within the framework of this thesis. This project addresses the importance of rural areas and their functions for society. It approaches rural development as part of a global network in which each region has its characteristics when responding individually and differently to its challenges.