[BAU] STRUKTUREN – ERKENNEN, PFLEGEN, NUTZEN • ein Kindergarten im Pfarrhof







Studienjahr 2024/25
Katharina Thek
Masterarbeit
Eva Sollgruber
Typology: Education

In der Architektur zeichnet sich bereits seit einiger Zeit ein Paradigmenwechsel ab. Zunehmend verlagert sich der Schwerpunkt von Neubauten zur Erhaltung bestehender Baustrukturen. So versuchen junge Planende einen Beitrag zum Erhalt solcher Baustrukturen und gleichzeitig unseres Planeten zu leisten.

Ressourcenknappheit und die immerwährenden Gefahren des Klimawandels ermutigen zum Erhalt, der Pflege und das Kümmern um den Bestand. Gleichermaßen steigt das Bewusstsein über Möglichkeiten, die eben dieser Bestand für den
Entwurf und gleichzeitig die gebaute Umwelt bringen.
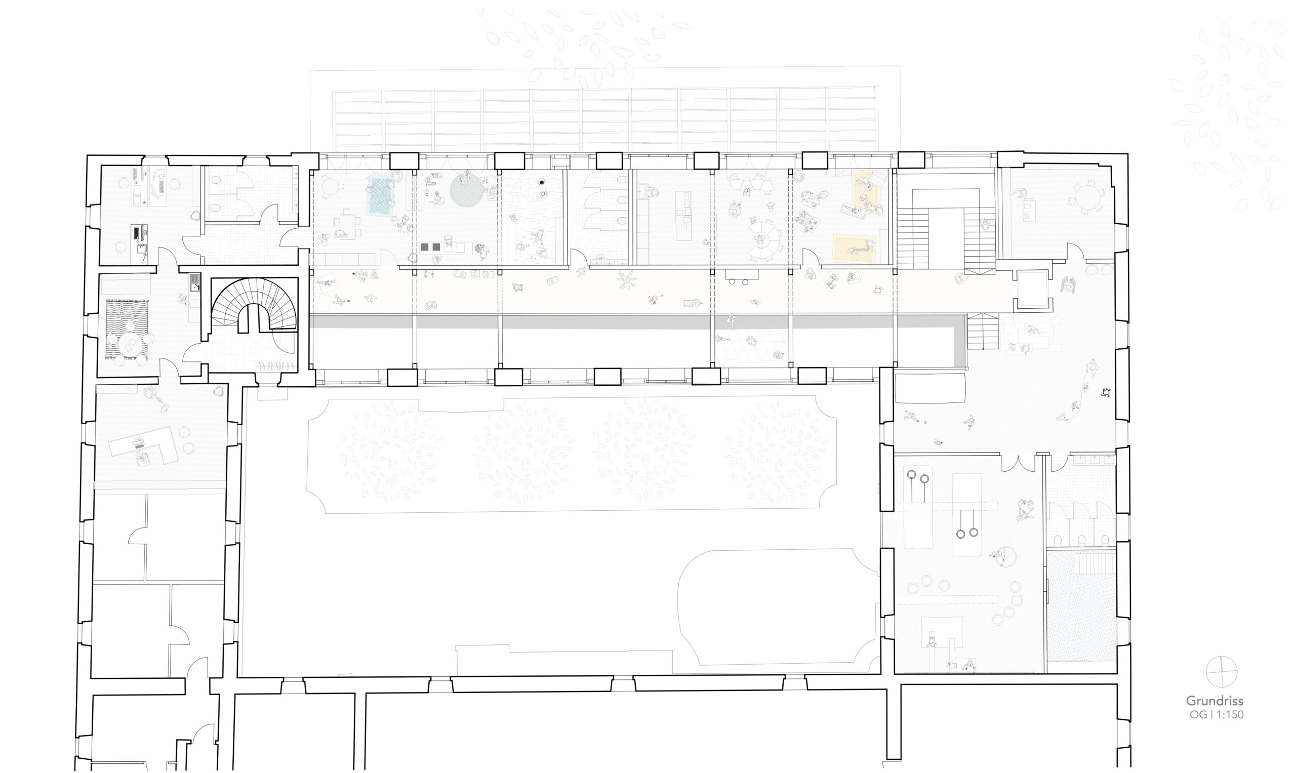
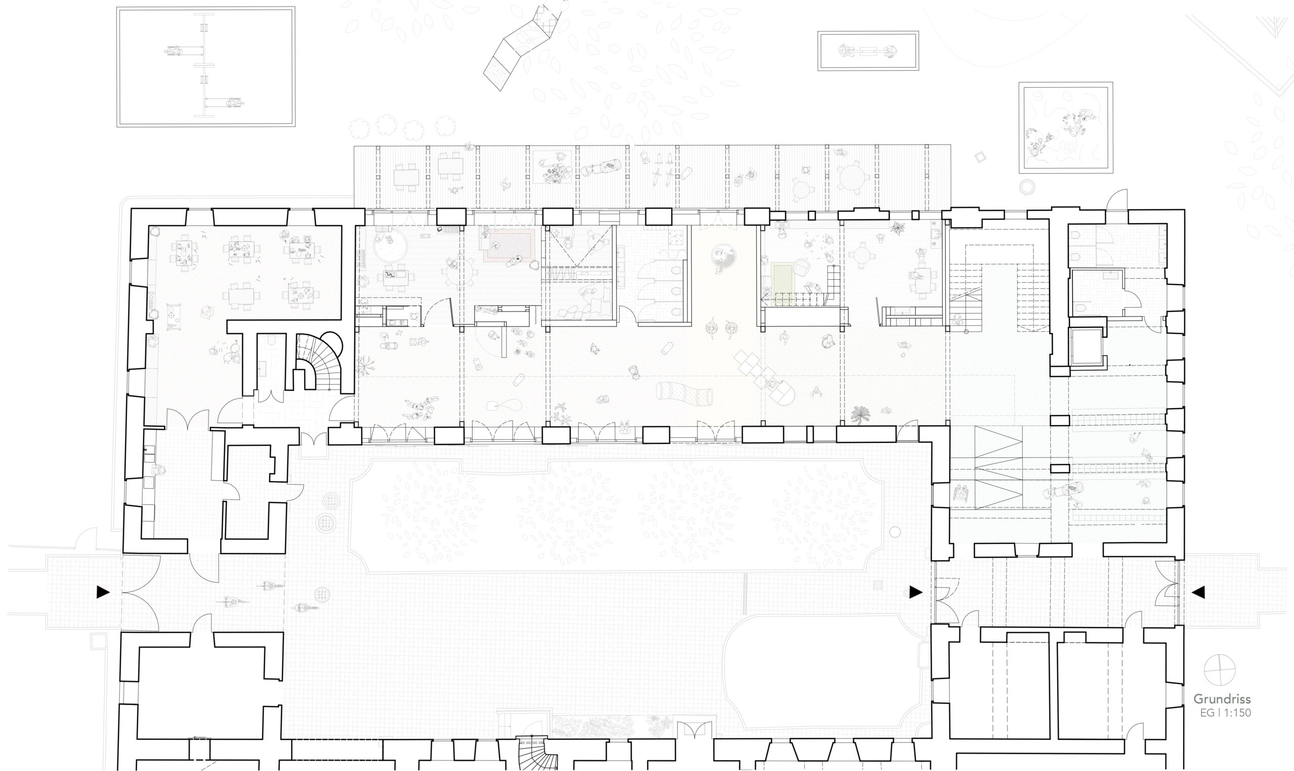
Sorgetragen wurde lange Zeit als weibliche Tätigkeit gesehen. Diese Betätigung des Kümmerns kehrt jedoch in unterschiedlichen Formen täglichen Lebens wieder. So haben sich beispielsweise auch Klöster und die Kirche der Pflege und Seelsorge ihrer Mitmenschen verschrieben. Es bietet sich also an, eine Möglichkeit des Sorgetragens, um alte Strukturen anhand des Pfarrhofes Feldkirchen an der Donau vorzustellen.
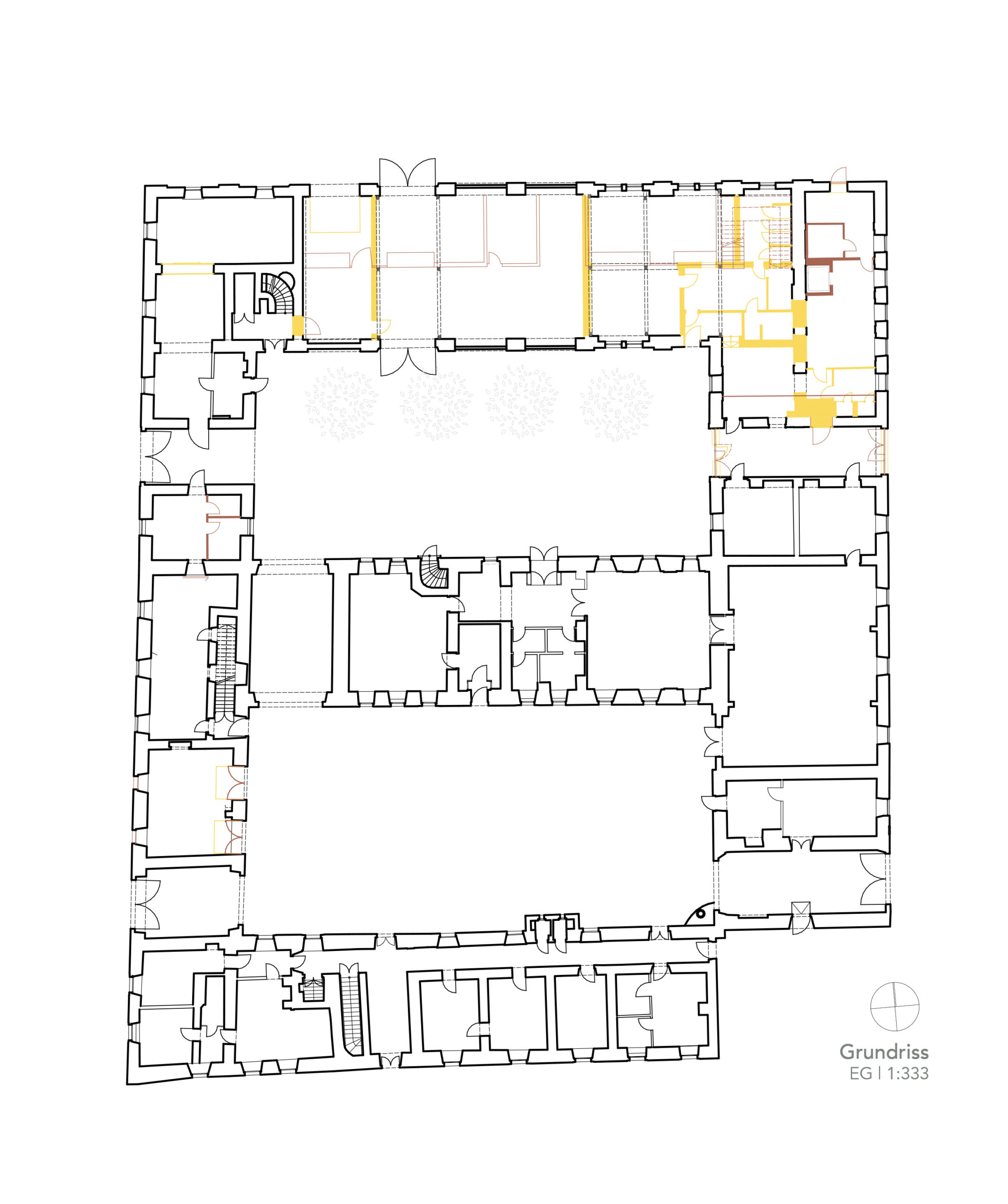
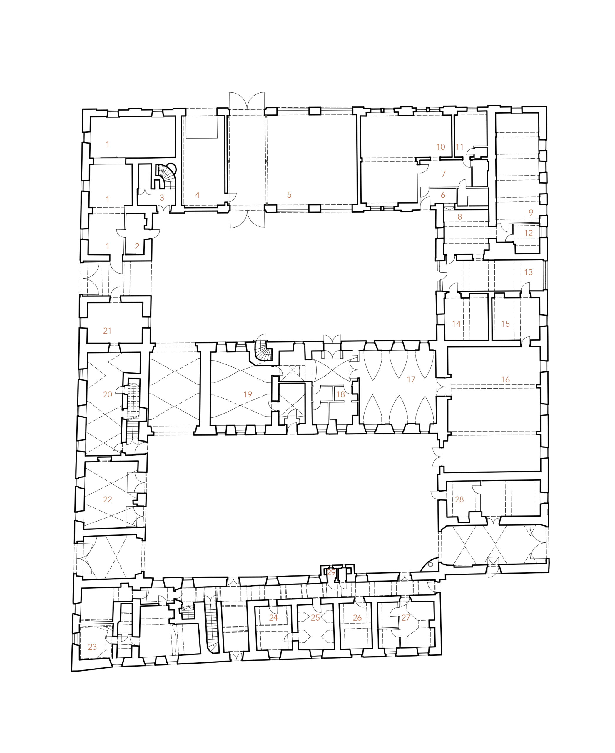
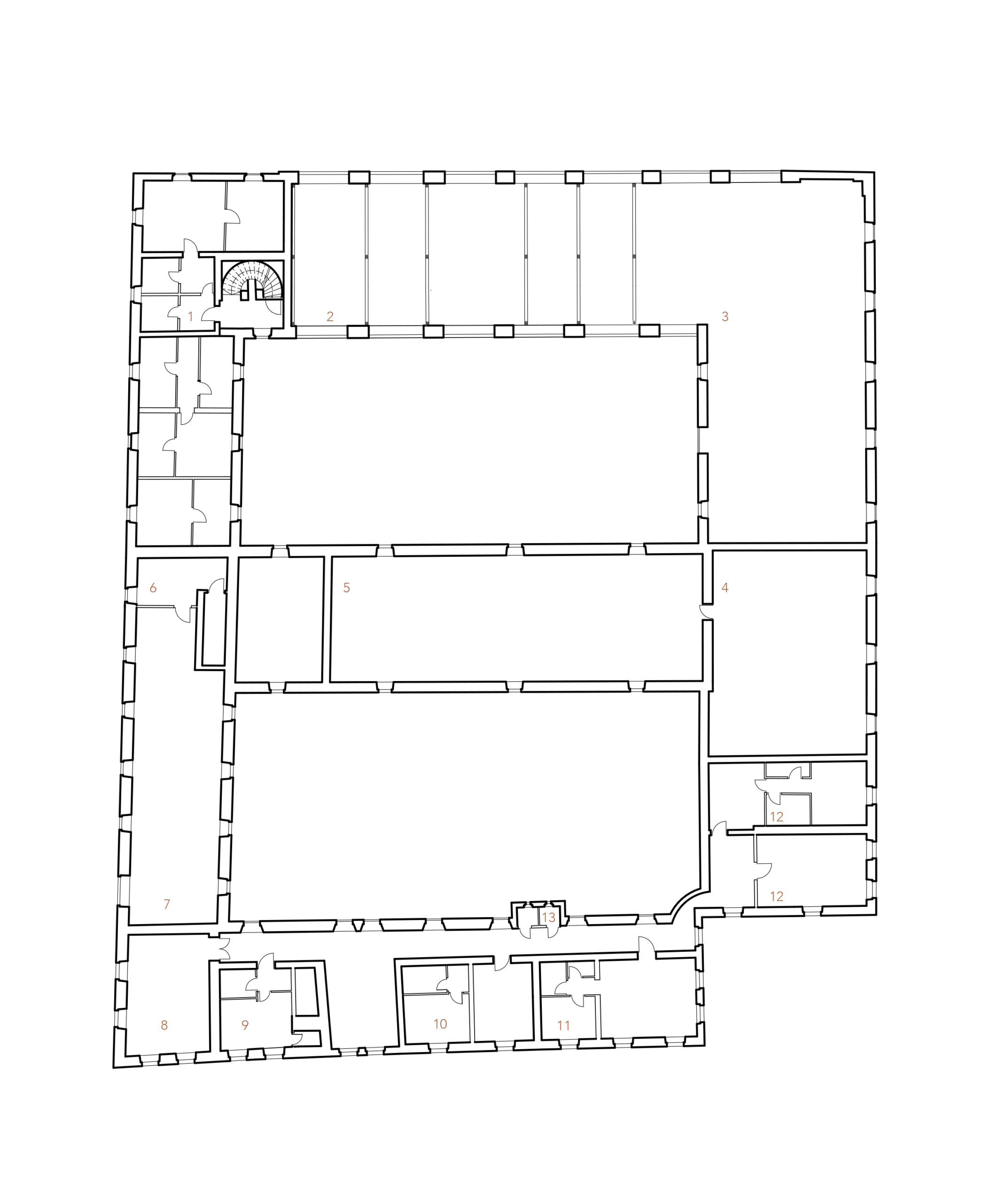
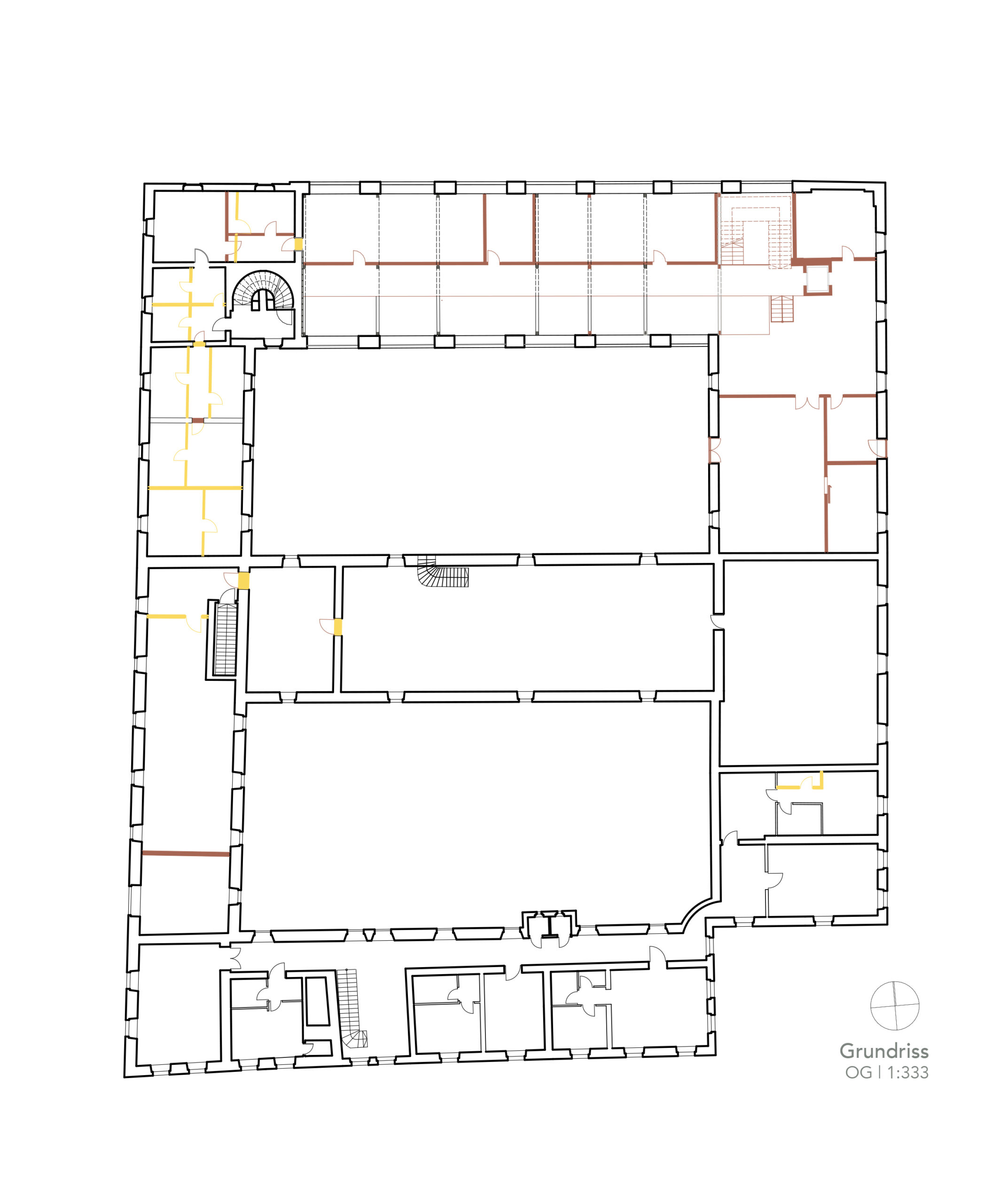
Durch das Einstellen der Landwirtschaft an genanntem Standort, stehen an die 1300m² ungenutzte Flächen frei. Ausbaufähige Dachgeschoßflächen sind dabei noch nicht berücksichtigt.
Gleichzeitig wächst die Bevölkerungszahl sowie der Bedarf an Kinderbildungsund Betreuungseinrichtungen. Bereits seit den 1950er Jahren besteht im Pfarrhof ein Kindergarten. Der nun aus Platzmangel um zwei Gruppen erweitert wird.
Der folgende Entwurf zeigt eine Variante für den Umbau des Kindergartens. Die Erweiterung dessen wird hierbei als erster Schritt zur Öffnung des Pfarrhofes hin zu einem Gemeindezentrum verstanden. Womit ein Neubau eines solchen in der Peripherie des Ortes verhindert wird.